Sold

Displaying: of 16

Agent Details

Sue McLennan

MODERN TOWNHOUSE with VIEWS to BUSHLAND RESERVE

Sold for $300,000

8/17 Crocodile Avenue, Morayfield

3
1
1

Profile

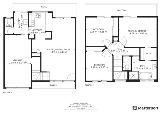
Wonderful 3-bedroom townhouse, ideally located in this boutique complex of only 17, nestled alongside native trees, bushland, and local wildlife, has a perfect blend of residents, creating a great community. Offering Low body corporate fees. Pets acceptable on application.


Upstairs:
- Three carpeted bedrooms with robes and ceiling fans
- Main bedroom with walk in robe and air conditioning
- Two bedrooms, have access to the balcony overlooking a reserve
- 2 Way bathroom with bath
- Separate toilet
Downstairs:
- Spacious open plan living / dining area, with air conditioning and ceiling fan
- Alfresco area
- Study nook with desk
- Modern kitchen with breakfast bar, gas cooktop, electric oven, and dishwasher
- Separate toilet
- large internal laundry
- Storage space
- Fenced courtyard with easy care garden
- Single remote garage with internal access
- Built 2012
- Pets allowed upon application

Offering a perfect low maintenance lifestyle with low body corporate fees this would be an ideal option for any first home buyer, astute investor, or anyone looking to downsize.

Located only a short distance to local Shopping Centres, Schools & Parks you will find this well-designed townhouse that is packed full of quality features.

Contact Sue McLennan to arrange an inspection

*Note* Whilst every care is taken in the preparation of the information contained herein, RE/MAX Victory will not be held liable for any errors in photography, typing or information. All information is considered correct at the time of printing. Any interested parties should satisfy themselves in this respect*




Features

20712161
Property ID
3
Bedrooms
1
Bathrooms
1
Garage
Gas cooktop, elec oven, dishwashr
Kitchen
Internal laundry
Laundry
Open plan
Lounge
2 x split systems
Air Conditioning
Schools, shops and transport
Close to
144 sqm approx.
Land Size
9
Building Age
$310 Weekly Forecast
Rental Return
$455 Quarterly
Rates
Air Conditioning
Balcony
Built In Robes
Courtyard
Dishwasher
Floorboards
Electric
Hot Water Service
Outdoor Ent
Remote Garage
Secure Parking
Split System
Study
$490 Quarterly
Water Rates

Send Enquiry

Your Details
Your Enquiry
  1. Please describe how we can be of assistance to you.

  2.  

    Would you like to join our mail list?

Submit
Get in touch!